Casino Floor Plan AutoCAD Drawing DWG File
Description
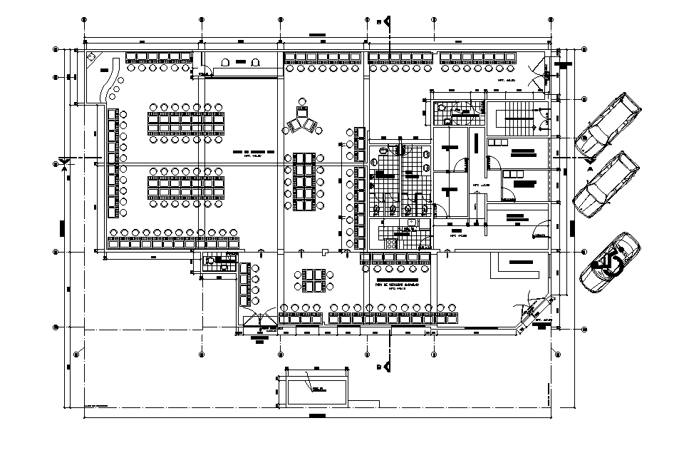
The hotel casino floor plan AutoCAD drawing that shows slot machines, men's costume, rest zone, games room, back office, reception area, kitchen, and toilet. also has vehicle parking and center line dimension detail. Download the 2D Autocad drawing file. Thank you downloading the 2D AutoCAD DWG drawing file and other CAD program files from our website.
Uploaded by:

