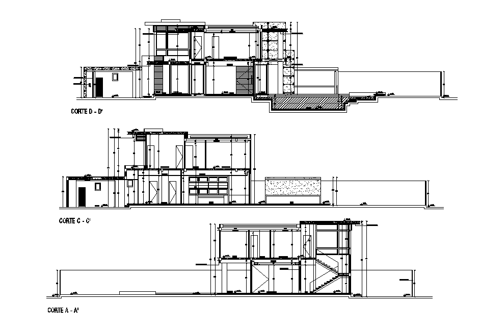
G+1 Storey House Building Section CAD Drawing Download DWG File
Description
The architecture residence house building section CAD drawing that shows north, east and front view which consist RCC slab, wall section, swimming pool and garden with compound wall design. the addition drawing such as all dimension detail. Download the 2D Autocad drawing file. Thank you downloading the 2D AutoCAD DWG drawing file and other CAD program files from our website.
Uploaded by:

