Toilet Plan With Plumbing Plan Drawing Download DWG File
Description
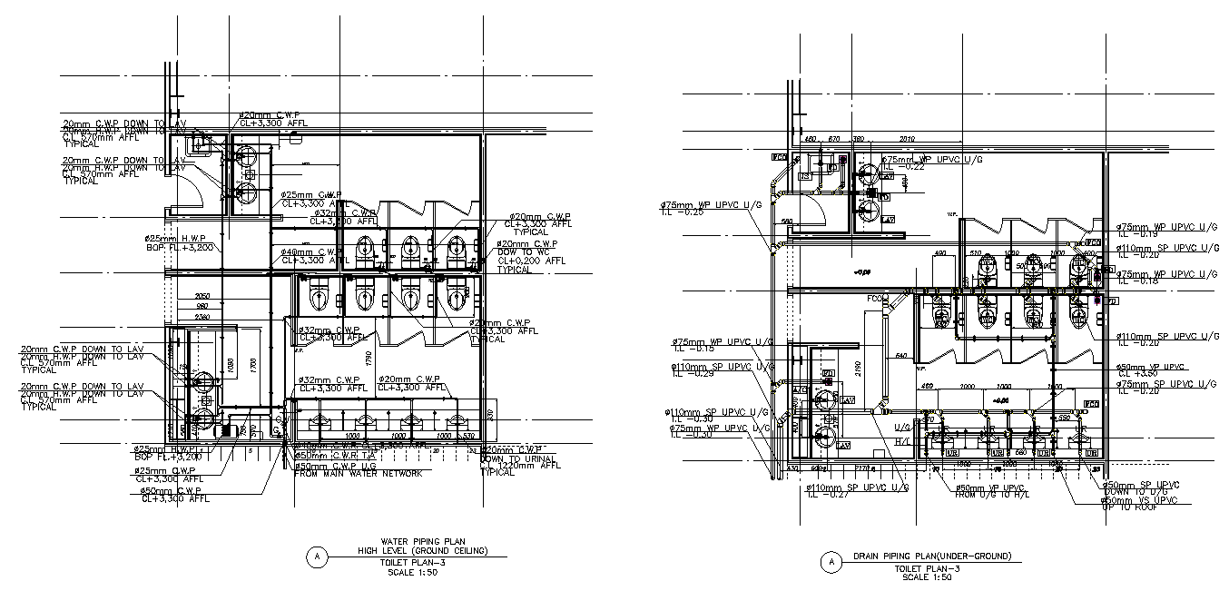
the toilet layout plan CAD drawing that shows toilet with plumbing plan that shows sanitary ware installation detail, water piping and drain piping plan detail. also has description with measurement detail. Thanks for downloading the file and another CAD program from the cadbull.com website.
Uploaded by:

