10X18 Meter House Ground Floor And First Floor Layout CAD Drawing DWG File
Description
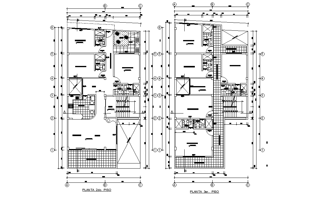
the residence house total build up area 180 square meter plot size that shows ground floor and first floor plan with center line and dimension detail. also has toilet sanitary ware and flooring design. Thanks for downloading the file and another CAD program from the cadbull.com website.
Uploaded by:
