90 Square Meter Apartment House Building Section Drawing DWG File
Description
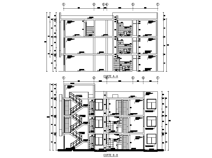
6X15 meter plot size of residence apartment building section drawing that shows G+2 floor level building model design, the length and breadth of the house plan is 6m and 15m respectively 2 BHK apartment house. Thank you for downloading the 2D AutoCAD DWG drawing file and other CAD program files from our website.
Uploaded by:

