20X16 Meter Hostel Layout Plan CAD Drawing Download DWG File
Description
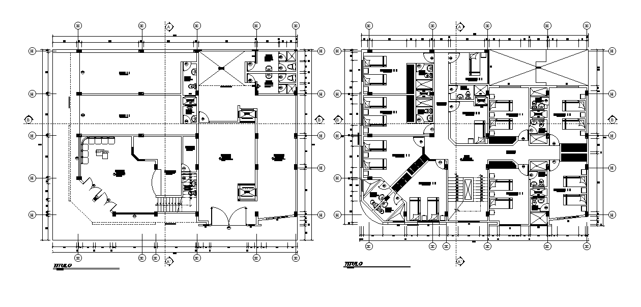
The residence hostel building ground floor and first floor layout plan CAD drawing shows 320 square meter total plot size. the plan drawing includes reception area, kitchen, dining hall, control room, bedrooms with an attached toilet. the additional detail such as a center line plan with dimension. Thank you for downloading the AutoCAD file and other CAD program from our website.
Uploaded by:
