Joint House Building Front Elevation Design Download DWG File
Description
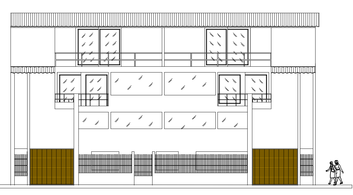
the residence joint house building front elevation design that shows the main entrance iron gate, compound wall and railing wall, glass window and clay roof design. The length and breadth of the plan is 20m and 16m respectively. Thank you for downloading the AutoCAD file and other CAD program from our website.
Uploaded by:

