225 Square Meter 3 BHK Apartment Layout Plan AutoCAD Drawing DWG File
Description
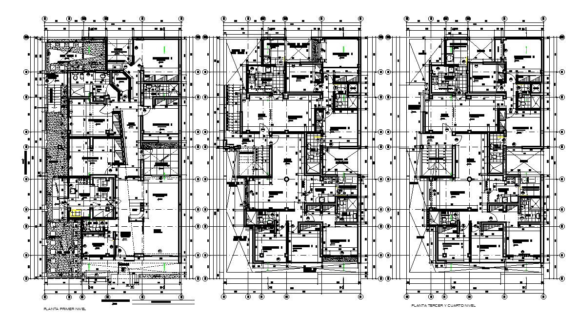
The multifamily residence apartment AutoCAD drawing shows 3 BHK layout plan design with sanitary ware detail, center line working plan, and the total length and breadth of the plan is 21m and 12m respectively. Thank you for downloading the AutoCAD file and other CAD program from our website.
Uploaded by:
