G+3 Storey Apartment Building Section Drawing DWG File
Description
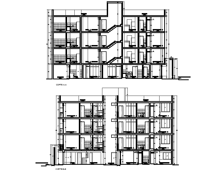
The multi family apartment building section CAD drawing that shows G+3 storey floor level building model design, RCC slab, staircase, gallery view, and dimension detail. the total length and breadth of the plan is 21m and 12m respectively and 225 square meter plot size. Thank you for downloading the AutoCAD file and other CAD program from our website.
Uploaded by:

