Hospital Layout Plan Drawing Download AutoCAD File
Description
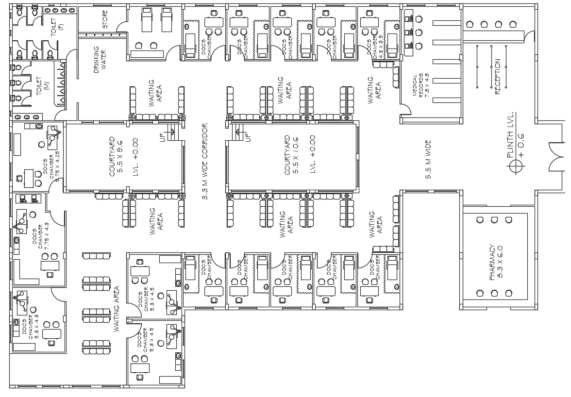
the multi specialist hospital layout plan CAD drawing that shows court yard, waiting area, pharmacy store, drinking water area, doctors consult room, operation theater, medical record room, and reception area. Thank you for downloading the AutoCAD file and other CAD program from our website.
Uploaded by:
