Hospital Emergency Layout Plan DWG File with Detailed Room Design
Description
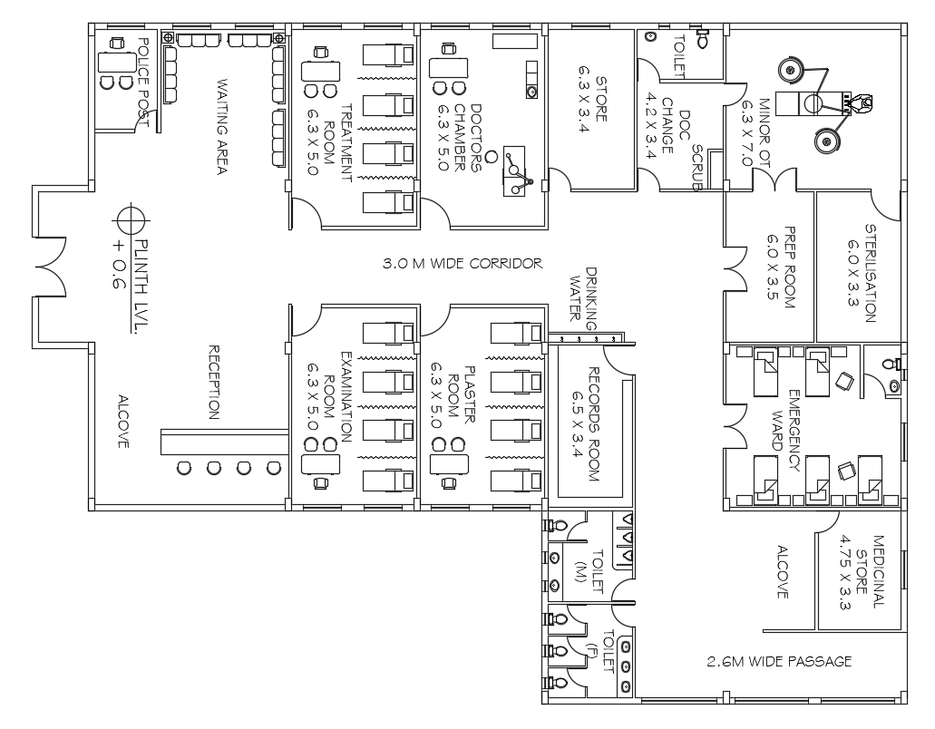
The hospital layout plan is an AutoCAD drawing that shows the waiting area, reception area, doctors' chamber, treatment room, medical store, emergency ward, and operation theater room with furniture design. Thank you for downloading the AutoCAD file and other CAD programs from our website.
Uploaded by:

