LOGIN
HOME
CATEGORIES
UPLOAD FILE
PRICING
HOUSE PLAN
ABOUT US
CONTACT US
House Design
Home
Categories
Architecture
House Plan
House Design
Uploaded by:
Priyanka
Patel
View Profile
View Profile
Description
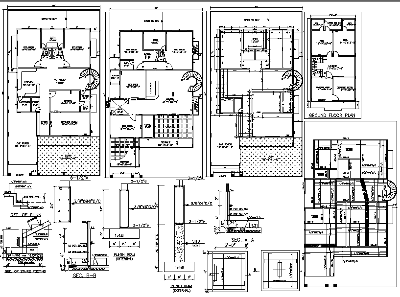
House Design Include the DwG file. 3 floor design, Lay-out design, Column, beam detail, foundation cutting detail.
File Type:
DWG
File Size:
1.1 MB
Category::
Architecture
Sub Category::
House Plan
type:
Gold
Uploaded by:
Priyanka
Patel
View Profile
Download
Add to libary
find Latest
Related
Files