LOGIN
HOME
CATEGORIES
UPLOAD FILE
PRICING
HOUSE PLAN
ABOUT US
CONTACT US
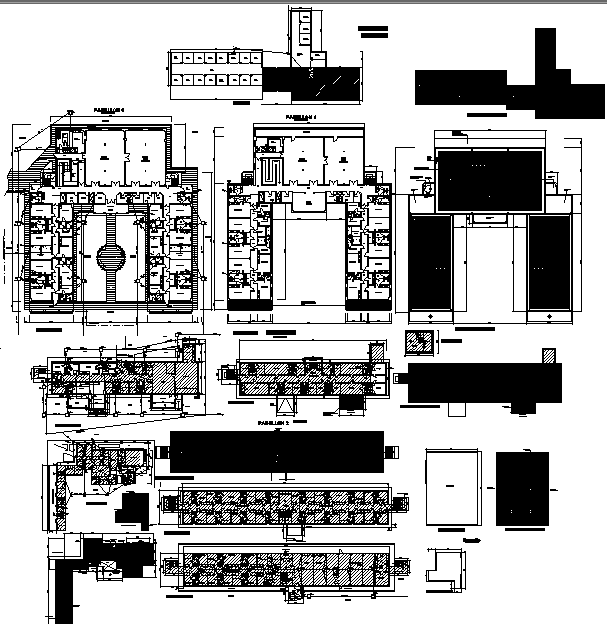
Clinic Pavillions Drainage
Home
Categories
Architecture
House Plan
Clinic Pavillions Drainage
Uploaded by:
Priyanka
Patel
View Profile
View Profile
Description
Clinic Pavillions design, Drainage design, drainage diagram, all operation Room, all pipe line detail.
File Type:
DWG
File Size:
4 MB
Category::
Architecture
Sub Category::
House Plan
type:
Free
Uploaded by:
Priyanka
Patel
View Profile
Download
Add to libary
find Latest
Related
Files