G+4 Storey Apartment Building Sectional Elevation Design Download DWG File
Description
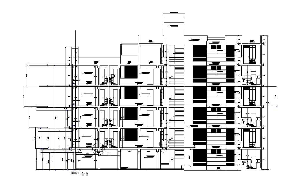
the multifamily residence apartment building section elevation design that shows G+4 storey floor level building model design which consist slab with floor level, door window marking, and all dimension detail. Thanks for downloading the file and another CAD program from the cadbull.com website.
Uploaded by:

