G+3 Storey Floor Level Building Section CAD Drawing DWG File
Description
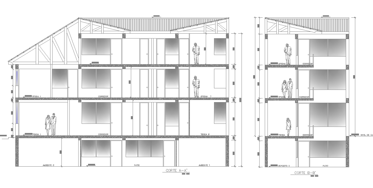
the residence apartment building section CAD drawing that shows RCC slab, wall section, door window marking, and truss span roof design. Thank you for downloading the AutoCAD file and other CAD program from our website.
Uploaded by:

