15X12 Meter Typical Apartment Layout Plan AutoCAD Drawing DWG File
Description
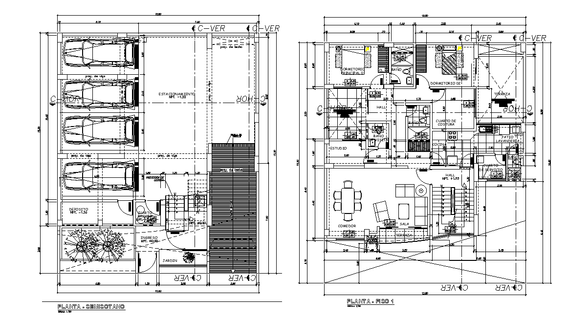
15X12 meter apartment AutoCAD drawing that shows basement parking lot and 2 BHK typical house apartment layout plan with furniture design. also has all all measurement dimension detail and staircase design. Thank you for downloading the AutoCAD file and other CAD program from our website.
Uploaded by:

