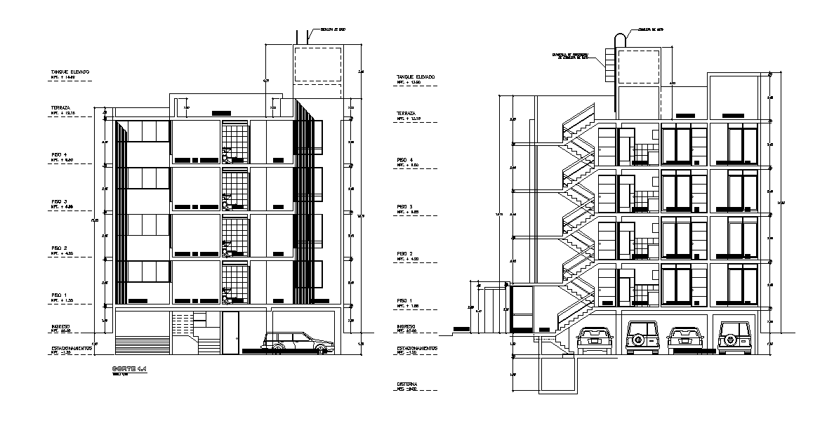
G+4 Storey Apartment Building Section Drawing Download DWG File
Description
The accounting office building AutoCAD drawing that shows front and side elevation design which consist floor level building model design, center line with dimension detail and use some AutoCAD hatching design for improve the CAD presentation. Thank you for downloading the AutoCAD file and other CAD program from our website.
Uploaded by:

