240 Square Meter Office Building Sectional Elevation Design DWG File
Description
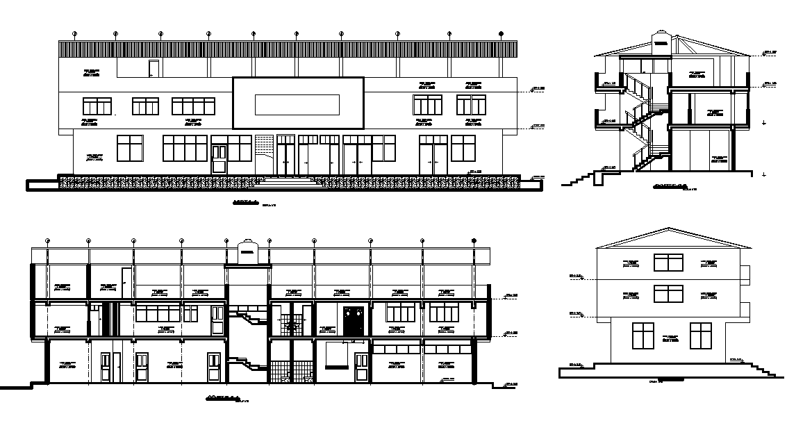
the corporate office building sectional elevation design that shows G+2 storey floor level building model design with dimension detail. also has truss span roof structure design. the the length and breadth of the plan is 30m and 8m respectively. Thank you for downloading the AutoCAD file and other CAD program from our website.
Uploaded by:

