Residency Building Sectional Elevation Design Download DWG File
Description
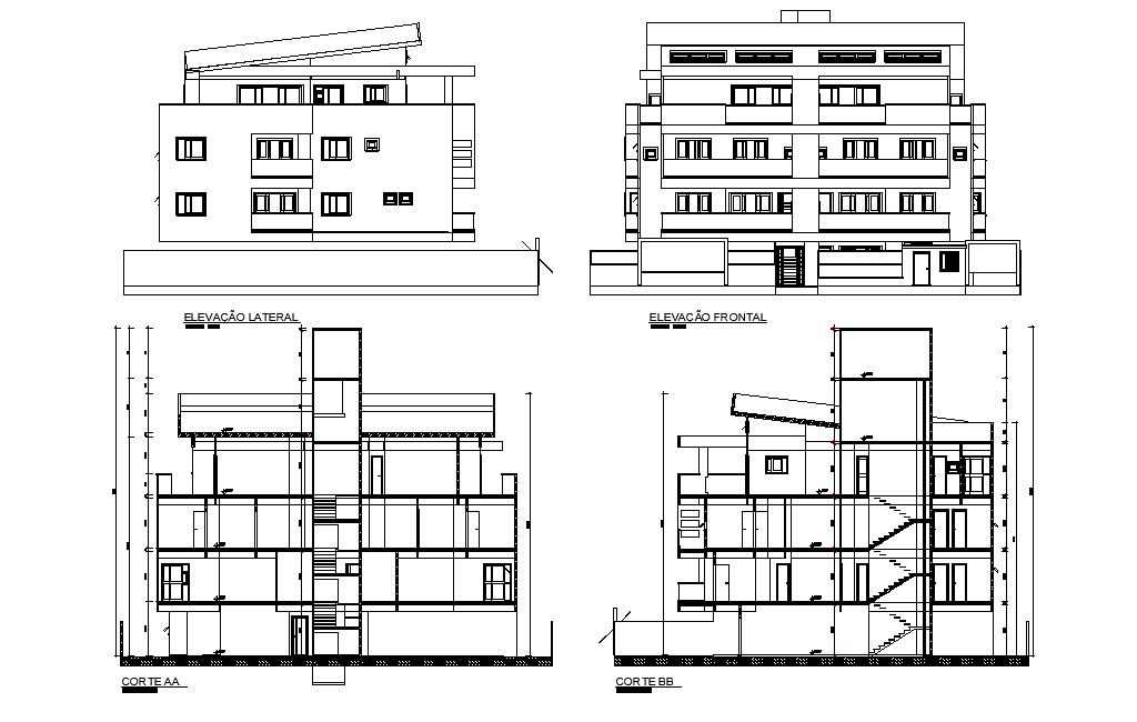
the residency building section drawing and elevation design that show G+2 storey floor level building model design which consist RCC staircase, slab, door window marking, gallery and compound wall design. Thank you for downloading the AutoCAD file and other CAD program from our website.
Uploaded by:

