3 BHK Joint House Apartment Layout Plan AutoCAD Drawing DWG File
Description
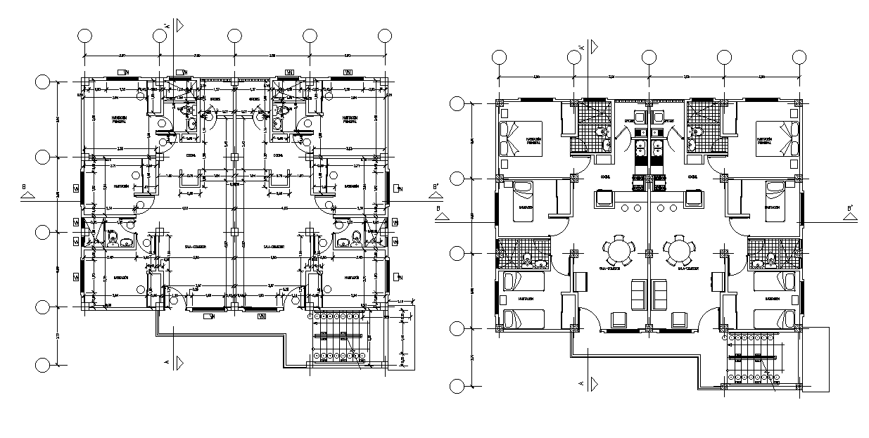
14X14 meter plot size for 3 BHK house plan CAD drawing with furniture design that shows column layout plan, center line and working plan with dimension detail. Thank you for downloading the AutoCAD file and other CAD program from our website.
Uploaded by:

