Water Tank Construction Column Footing And Wall Section Drawing DWG File
Description
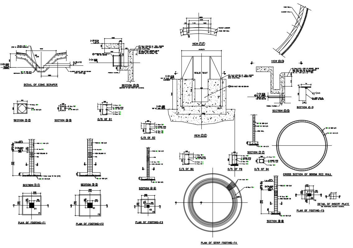
the industrial plant water tank construction CAD drawing that shows column footing foundation section and plan drawing, the detail of cone scraper set all baffle anchor bolts on radial line start here spacing with outlet launder and tank rcc wall. Thank you for downloading the AutoCAD file and other CAD program from our website.
Uploaded by:
