Filter Plant Process Machine AutoCAD Drawing Download DWG File
Description
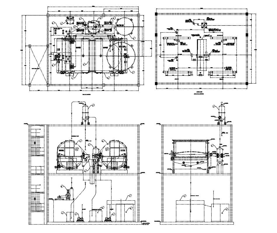
the industrial plant filter process machine section CAD drawing that shows 16000 kgs load eq uniformly distributed on each pedestal, opening for tank drain pipe connection and other information's are provided to accommodate the mechanism for the tank as shown in drawing. Thank you for downloading the AutoCAD file and other CAD program from our website.
Uploaded by:

