13X8 Meter House First Floor Plan AutoCAD Drawing Download DWG File
Description
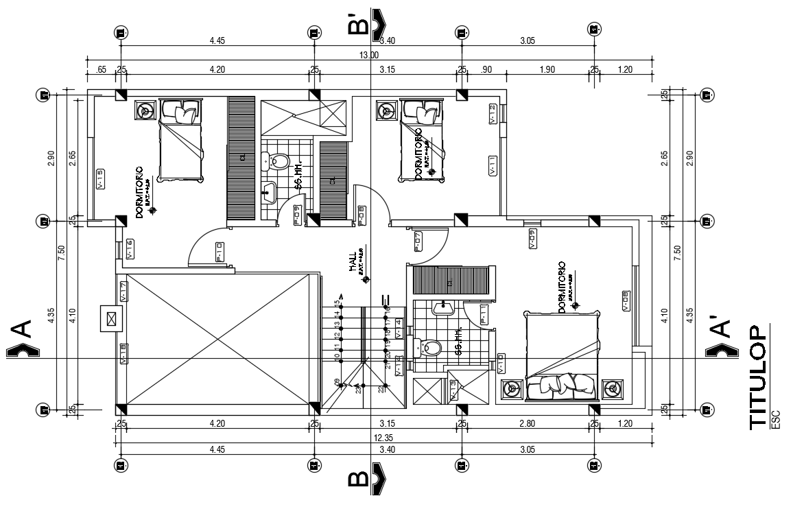
13X8 meter plot size of house fist floor plan AutoCAD drawing that shows 3 bedrooms with an attached toilet, also has center line plan and column layout plan with all dimension and furniture detail DWG file. Thank you for downloading the AutoCAD file and another CAD program from our website.
Uploaded by:

