Expanding Bathroom Plan And Section CAD Drawing Download DWG File
Description
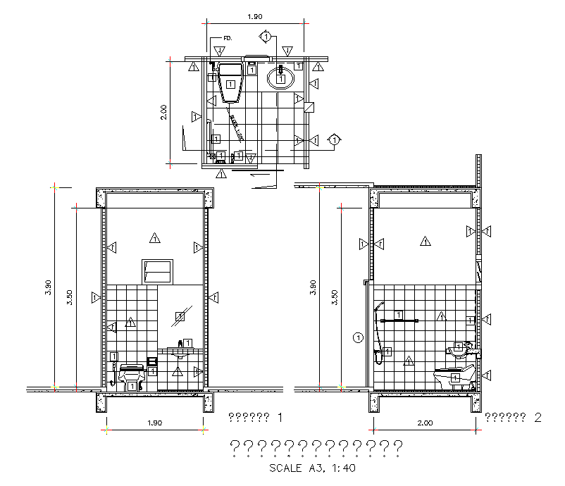
the expanding bathroom plan and section CAD drawing that shows hardware and sanitary also given detail with dimensions and specifications detail, wall tiles and RCC flooring detail. Thank you for downloading the AutoCAD file and other CAD program from our website
Uploaded by:

