Commercial Food Storage Layout Plan CAD Drawing Download DWG File
Description
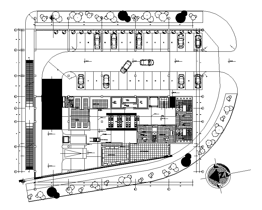
the commercial food storage layout plan AutoCAD drawing which includes deposit of canned and canned goods, deposit of cleaning products, deposit of grains, washing and packaging, unloading yard, dairy products, sausages and vegetables, fish and seafood, cold storage, red meat and poultry, machine room, power house, and service hall. Thank you for downloading the AutoCAD file and other CAD program from our website.
Uploaded by:

