Shopping Mall Layout Plan AutoCAD Drawing DWG File
Description
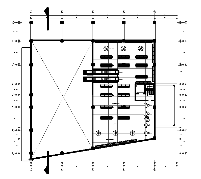
Shopping mall layout plan AutoCAD drawing which includes liquor store, groceries, canned goods, household cleaning items, personal cleaning items, baby items, customer service, multiple billing counter, canned goods, household cleaning items, and personal cleaning items. Thank you for downloading the AutoCAD file and other CAD program from our website.
Uploaded by:

