School Class Room Floor Plan With Electrical Layout Plan AutoCAD Drawing Download DWG File
Description
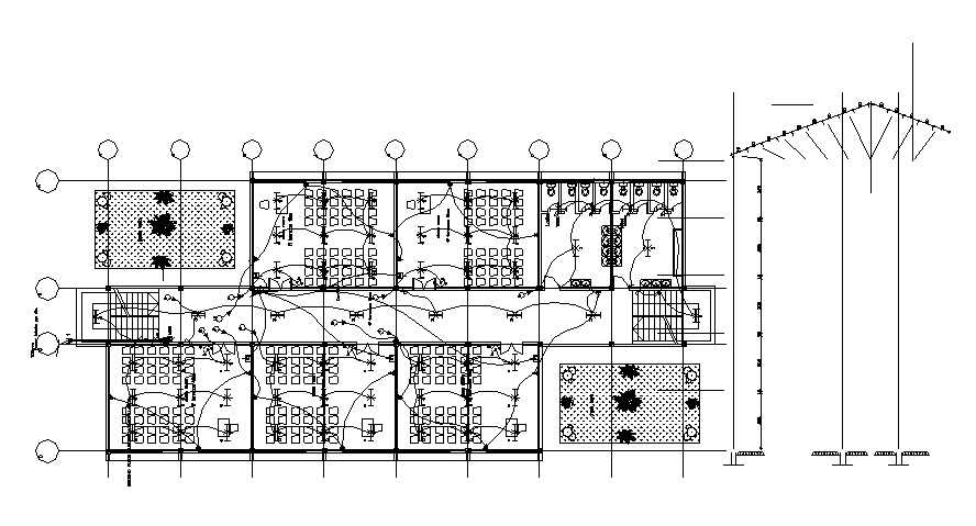
the school building electrical layout CAD drawing that shows ceiling false light and wiring detail in class rooms, toilet for girls and boys, staircase and garden. also has furniture layout and center line plan with dimension detail. Thank you for the Autocad drawing file and other CAD program files from our website.
Uploaded by:
