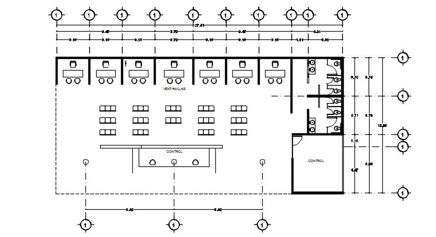
Seating arrangement of 51x14m office plan is given in this autocad drawing file. ThisDownload the Autocad file.
Description
Seating arrangement of 51x14m office plan is given in this autocad drawing file. This is G+1 office plan. In this board room, sub management, internships, bathroom, balcony, reception, elevator, office coordinators and other details are given in this Autocad drawing file. For more details download the Autocad file. Thank you for downloading the Autocad file and other CAD program files from our website.
Uploaded by:

