First Floor Furniture Layout of 26x12m Office Plan AutoCAD File
Description
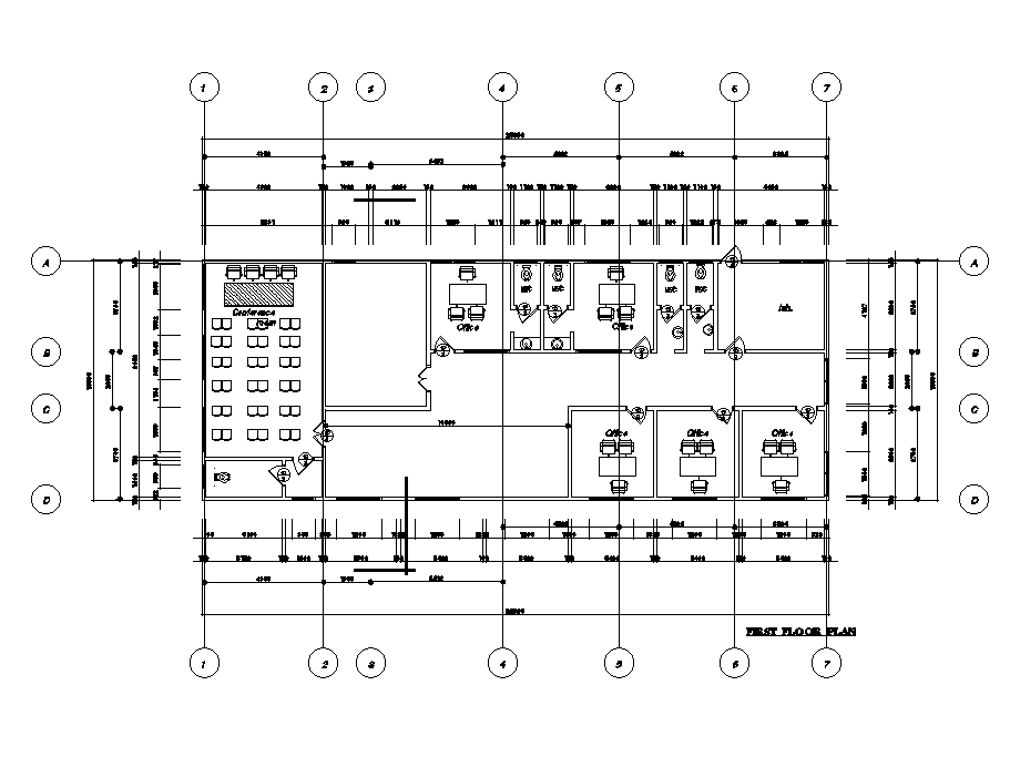
This AutoCAD file provides a detailed furniture layout for the first floor of a 26x12m office plan. It includes accurate arrangements for conference rooms, open office spaces, employee cabins, reception, waiting areas, and separate male and female washrooms. Designed for architects, interior designers, and CAD professionals, the file helps streamline planning, visualization, and space optimization. The ready-to-use AutoCAD blocks ensure professional-quality results for modern office interiors.
Uploaded by:

