LOGIN
HOME
CATEGORIES
UPLOAD FILE
PRICING
HOUSE PLAN
ABOUT US
CONTACT US
Modern House project
Home
Categories
Architecture
House Plan
Modern House project
Uploaded by:
Priyanka
Patel
View Profile
View Profile
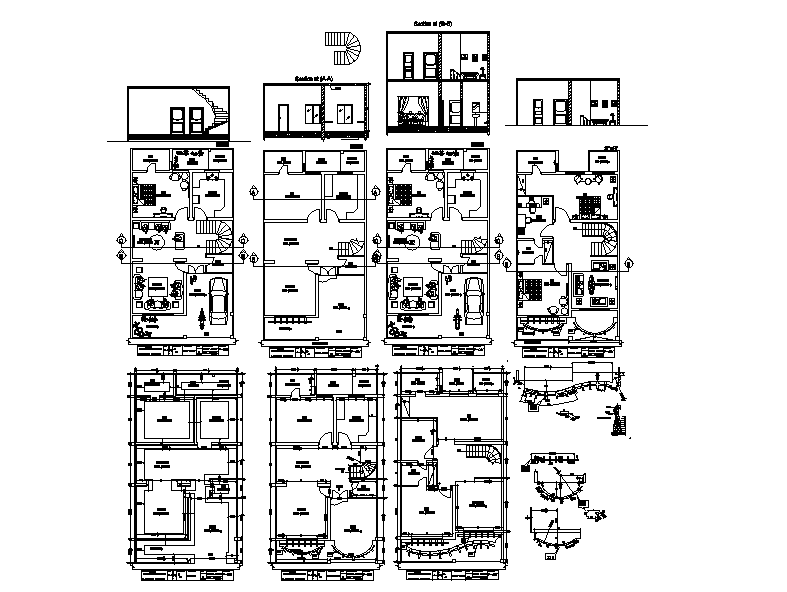
Description
This modern House Detail, Electric L detail lay-out, Ceiling lay-out, interior detail, elevation detail.
File Type:
DWG
File Size:
1.8 MB
Category::
Architecture
Sub Category::
House Plan
type:
Gold
Uploaded by:
Priyanka
Patel
View Profile
Download
Add to libary
find Latest
Related
Files