Fire House Cabinet Plan And Side Section CAD Drawing DWG File
Description
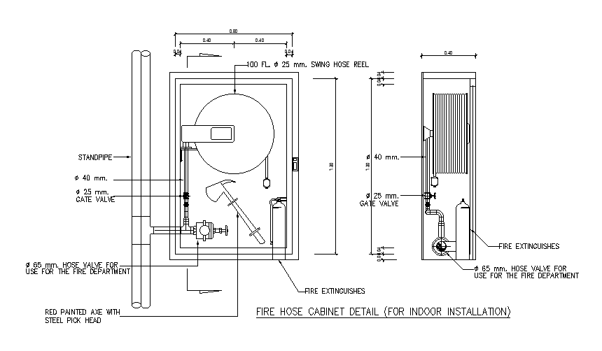
the fire house cabinet plan and side section CAD drawing that shows fire hose cabinet detail for indoor installation, red painted axe with steel pick head, ? 65 mm. hose valve for and fire extinguishes detail. Thank you for downloading the AutoCAD file and other CAD program from our website.
File Type:
DWG
File Size:
54 KB
Category::
Construction
Sub Category::
Construction Detail Drawings
type:
Gold
Uploaded by:

