Wash Basin Front And Side View Elevation Design Download DWG File
Description
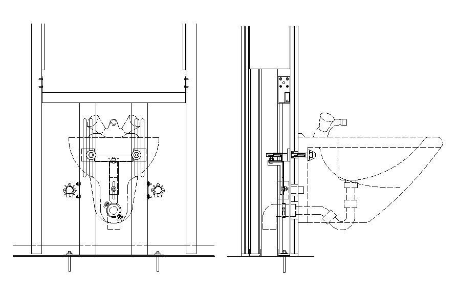
The AutoCAD drawing given detail of wash basin sanitary ware CAD blocks which includes front and side that shows mixer tap for hot and cold water, and wall mounted fixing detail DWG file. Thank you for downloading the AutoCAD file and other CAD program from our website.
Uploaded by:

