Hospital Door Window Marking And Height Detail Download DWG File
Description
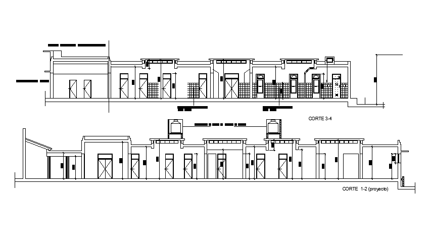
The hospital door and window marking detail that shows height with dimension view, also has masonry for closing reserve tanks, 20x20 white glazed ceramic, existing sector defunctionalized and new construction detail. Thank you for downloading the AutoCAD file and other CAD program from our website.
Uploaded by:

