Water Tank With Meter And Valve Detail Download DWG File
Description
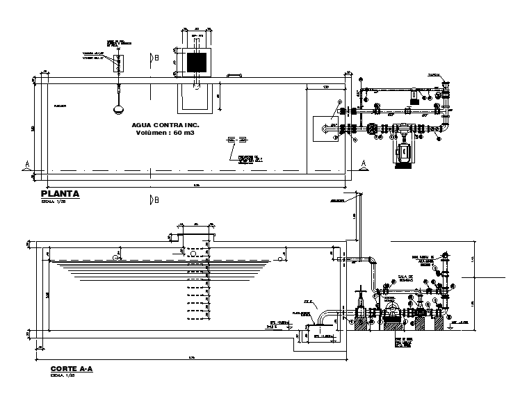
the water tank section CAD drawing which includes water against inc. volume 60 m3 and it comes from public network or water meter base of concrete for anchoring the pump detail DWG file. Thank you for downloading the AutoCAD file and other CAD program from our website.
Uploaded by:

