Architecture Office Floor Plan AutoCAD Drawing DWG File
Description
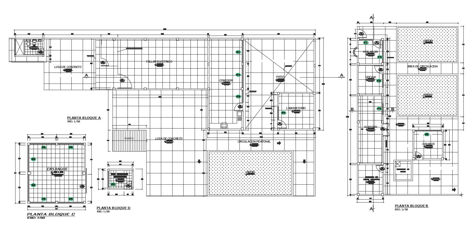
The architecture office plan CAD drawing includes different department with dimension detail which is mention in meter format. also has electric sub station, solid waste warehouse, circulation area, electrical workshop, laboratory, dining room, concrete slab, and circulation area detail DWG file. Thank you for downloading the AutoCAD drawing file and other CAD program files from our website.
Uploaded by:

