4 BHK House With Inside Swimming Pool CAD Drawing DWG File
Description
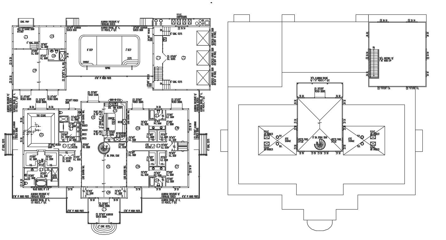
The residence house ground floor plan and top view roof plan CAD drawing which includes 4 bedrooms, spiral staircase, drawing room, game zone, modular kitchen, inside swimming pool, library and study room detail. the total space planning in plot size is 120X110 feet detail. Thank you for downloading the AutoCAD drawing file and other CAD program files from our website.
Uploaded by:

