3 BHK Joint House Ground Floor And First Floor Plan CAD Drawing DWG File
Description
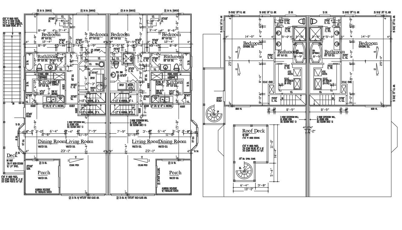
the architecture joint house ground floor plan and first floor plan CAD drawing that shows 3 bedrooms with master bathrooms, kitchen, drawing room dining area, living room, and car parking porch detail. Thank you for downloading the AutoCAD drawing file and other CAD program files from our website.
Uploaded by:
