Architecture House Ground Floor Plan AutoCAD Drawing Download DWG File
Description
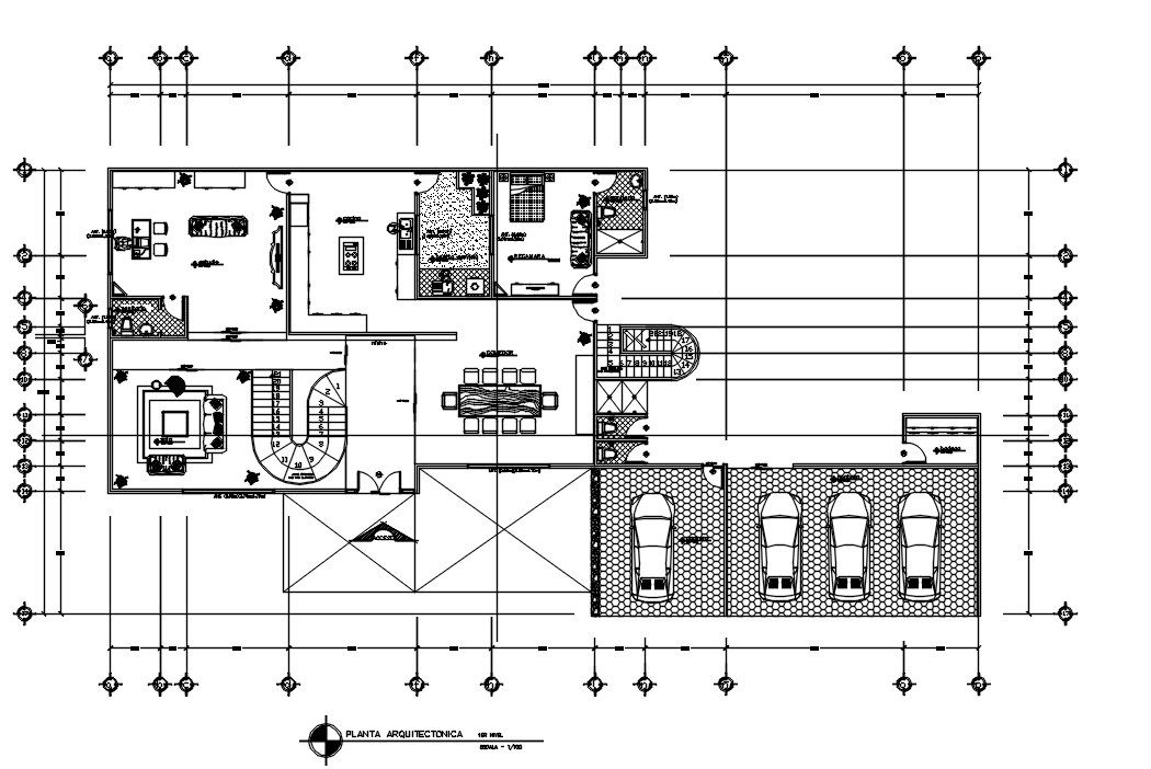
34X17 meter house ground floor plan is given in this Autocad drawing file. which includes bedrooms with an attached toilet, living room, drawing room, kitchen, dining area, and car parking porch with all furniture layout and center line plan detail DWG file. Thank you for downloading the Autocad file and other CAD program files from our website.
Uploaded by:

