140 Square Meter House Foundation Plan And Center Line Plan Download DWG File
Description
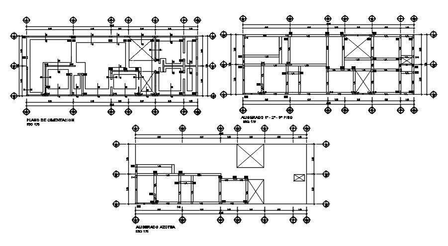
20X7 meter breadth and length of apartment plot size for 2 BHK house with center line plan and dimension detail. this is G+3 Storey floor level building project drawing DWG File. Thank you for downloading the Autocad file and other CAD program files from our website.
Uploaded by:

