AutoCAD Office Floor Plan CAD Drawing Download Free DWG File
Description
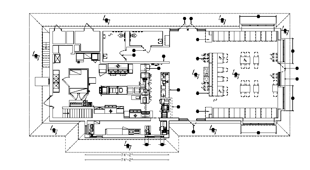
the office layout plan AutoCAD drawing that shows executive office, office space, ladies toilet, lift and other details are given in this drawing model. For more details download the Autocad file. Thank you for downloading the Autocad file and other CAD program files from our website.
Uploaded by:

