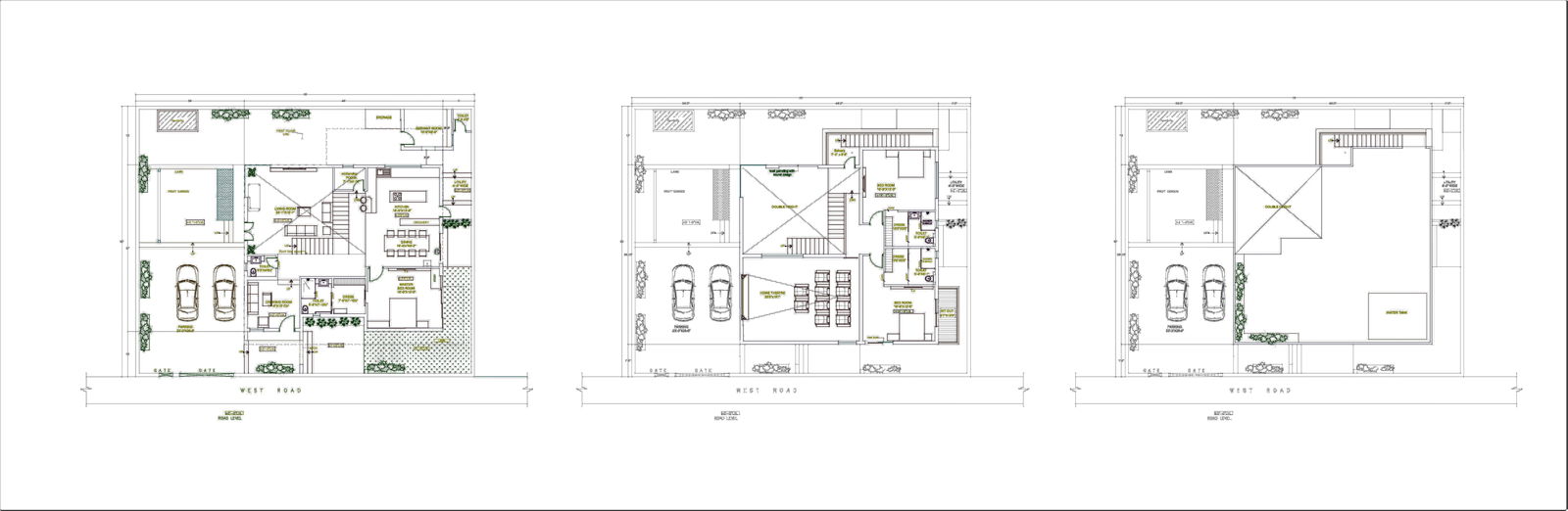
Contemporary Duplex DWG AutoCAD 3BHK plan with Theater Details
Description
This AutoCAD drawing presents a contemporary 3BHK duplex house plan, meticulously designed as per Vastu principles and tailored for a west-facing plot. The layout includes a spacious garden and a dedicated home theater, enhancing the living experience. Compatible with AutoCAD versions 2004 and above, this plan offers a modern and functional design suitable for residential projects.
File Type:
Autocad
File Size:
1 MB
Category::
Projects
Sub Category::
Architecture House Projects Drawings
type:
Gold
Uploaded by:
Vijay
Arch

