Hospital Floor Plan AutoCAD Drawing Download DWG File
Description
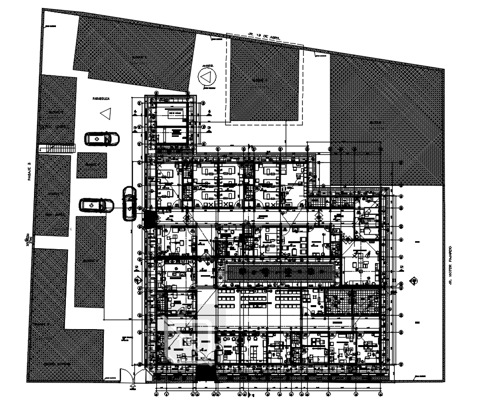
the general hospital ground floor plan AutoCAD drawing which includes a reception area, clinical laboratory, a deposit of samples, operation theater, admit room, and parking lot with all furniture and measurement detail dwg file. also has centre line plan and compound wall detail. Thank you for downloading the Autocad file and other CAD program files from our website.
Uploaded by:

