35'X42' House 3 BHK Plan AutoCAD Drawing Download DWG File
Description
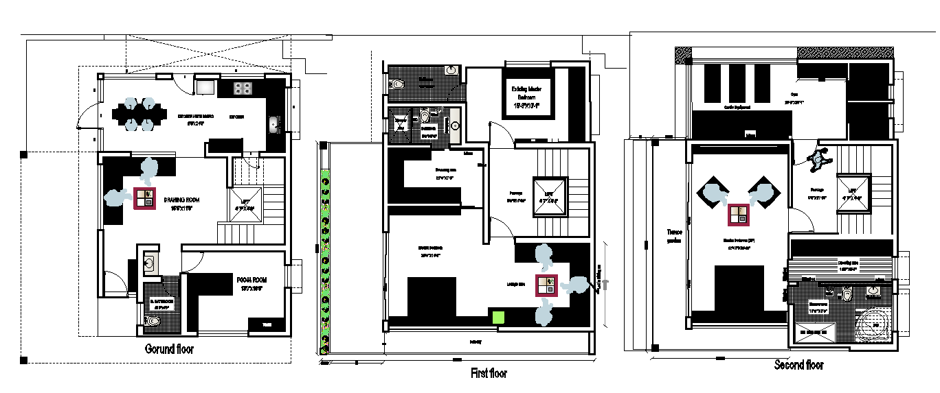
The residence house ground floor, first floor, and second-floor plan CAD drawing that shows 3 master bedrooms, GYM, kitchen, drawing room, prayer room, lift, staircase, and all furniture layout plan detail. 35X42 feet plot size and total build-up construction area is 28X36 feet in detail. Thank you for downloading the Autocad file and other CAD program files from our website.
Uploaded by:

