The restaurant layout plan presented in this file. Download this 2d drawing file.
Description
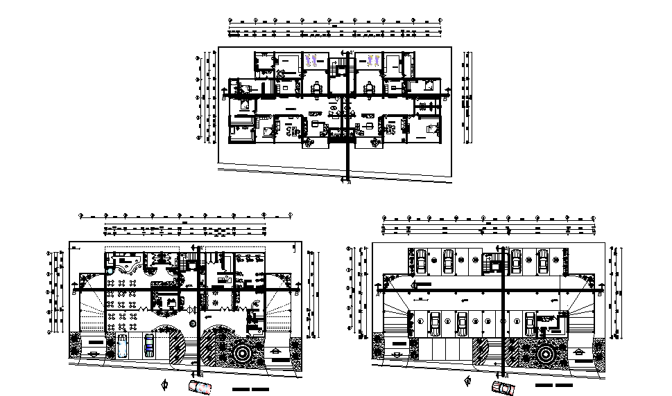
The restaurant layout plan presented in this file. AutoCAD drawing that shows dining area, kitchen, hall, bar counter, waiting area, toilet for man and women. the additional drawing such as centerline plan with dimension detail. Thank you for downloading the AutoCAD file and other CAD programs from our website. Download this 2d drawing file.
Uploaded by:

