The residence architecture house ground floor plan AutoCAD drawing
Description
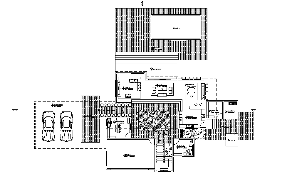
The residence architecture house ground floor plan AutoCAD drawing which includes a swimming pool, drawing room, living lounge, dining area, kitchen, study room, and 2 big car parking space accommodation detail dwg file. Thank you for downloading the Autocad files and other CAD program files from our website.
Uploaded by:

