AutoCAD 3 Bedrooms House Layout Plan With Furniture Drawing Download DWG File
Description
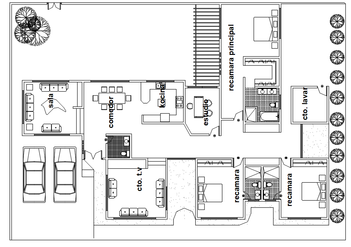
The residence architecture house plan with space planning furniture layout CAD drawing which includes 3 master bedrooms with an attached toilet, study room, kitchen, drawing room, living lounge, and 2 car parking area detail. Thank you for downloading the Autocad drawing file and other CAD program files from our website.
Uploaded by:
