52x17m architecture office plan is given in this Autocad drawing file.Download now.
Description
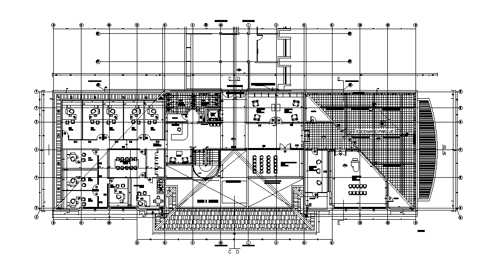
52x17m architecture office plan is given in this Autocad drawing file. This is G+2 office building. Administration, computer area, conference room, dining area, rest room for male & female, reception, and other details are mentioned in this drawing model. For more details download the Autocad file. Thank you for downloading the Autocad files and other CAD program files from our website.
Uploaded by:

