Library Building Floor Plan AutoCAD Drawing Free Download DWG File
Description
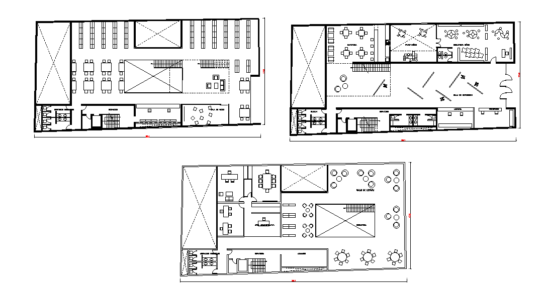
36X17 meter plot size for library building ground floor, first floor, and second-floor plan AutoCAD drawing which includes admin office, cafeteria, toilet, reading hall, book storage, and staircase detail. For more details download the Autocad file. Thank you for downloading the Autocad file and other CAD program files from our website.
Uploaded by:

