Auditorium Building Sectional Elevation CAD Drawing Download DWG File
Description
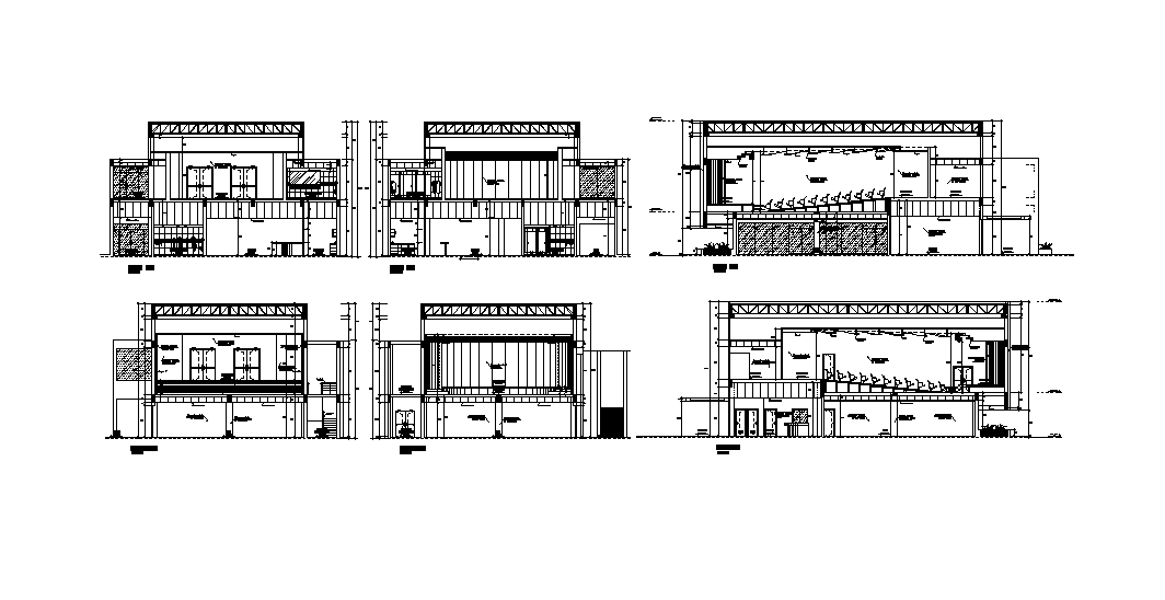
the Auditorium building sectional elevation design AutoCAD drawing which includes seating arrangement, cafeteria, toilet, admin office, and many more detail dwg file. For more details download the Autocad file. Thank you for downloading the Autocad file and other CAD program files from our website
Uploaded by:

