Auditorium Building ground Floor And First Floor Plan CAD Drawing Download DWG File
Description
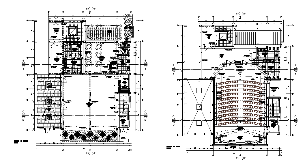
Auditorium building ground floor and first-floor layout plan CAD drawing which includes seating arrangement, cafeteria, toilet, admin office, and much more detail. also has centre line plan detail dwg file. For more details download the Autocad file. Thank you for downloading the Autocad file and other CAD program files from our website
Uploaded by:

